Henken Immobilien GmbH

Dachgeschosstraum: 3-Zimmer-Wohnung mit Balkon und Stellplatz KFW 40 QNG

26131 Oldenburg, Wohnung zum Kauf

Kontaktdaten

Objektdaten

  • Objekt ID
    H00104/5
  • Objekttyp
    Wohnung
  • Adresse
    26131 Oldenburg
  • Etage
    2
  • Wohnfläche ca.
    56,39 m²
  • Zimmer
    3
  • Baujahr
    2026
  • Verfügbar ab
    August 2026
  • Aufzug
    Personenaufzug
  • Balkon/Terrasse
    Balkon
  • Böden
    Fliesenboden, Kunststoffboden
  • derzeitige Nutzung
    frei
  • Fenster
    Kunststofffenster
  • Haustyp
    KfW 40
  • Heizungsart
    Fußbodenheizung, Luft-/Wasser-Wärmepumpe
  • Sanitär
    Bad mit Dusche, Bad mit Fenster
  • Sonstiges/Wohnen
    Abstellraum, barrierefrei
  • Stellplatz
    Stellplatz
  • Wohnungslage
    Dachgeschoss
  • Zustand
    Neubau
  • Käufer­provision
    2,38 % inkl. 19 % MwSt.
  • Kaufpreis
    294.500 EUR

Ausstattung / Merkmale

  • ✓ Balkon
  • ✓ Barrierefrei
  • ✓ frei
  • ✓ Neubau
  • ✓ Personenaufzug
  • ✓ Stellplatz

Objekt­beschreibung

Beschreibung

Zum Verkauf stehen fünf Eigentumswohnungen in einem modernen Mehrfamilienhaus, welches nächstes Jahr fertiggestellt wird.
Auch dieses Wohnprojekt wird nach dem Effzienzhaus-Standard-40 QNG entsprechend geplant. Sprich, Sie haben hier zusätzlich als Kapitalanleger
maximale Abschreibungsmöglichkeiten.

Eine moderne Luft-/Wasser-
Wärmepumpe, eine entsprechende Gebäudedämmung, sowie eine
Photovoltaikanlage auf dem Dach lassen Sie unabhängiger von Energieanbietern
und den unvorhersehbaren
Preisentwicklungen werden. So steigern Sie nicht nur Ihren eigenen positiven Beitrag, sondern auch das Einsparungspotenzial Ihrer
Betriebskosten.

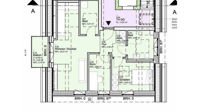
Wohnung Nr. 5
Diese attraktive Drei-Zimmer-Wohnung liegt im Dachgeschoss eines modernen Mehrfamilienhauses und besticht durch eine durchdachte Planung sowie hohen Wohnkomfort. Mittelpunkt der Wohnung ist der großzügige Wohn- und Essbereich, von dem Sie direkt den nach Westen gerichteten Balkon erreichen – ein perfekter Platz, um die Abendsonne zu genießen. Das große Schlafzimmer schafft einen Rückzugsort zum Entspannen, während ein zweites Zimmer als Gäste- oder Arbeitsbereich genutzt werden kann. Das Badezimmer erhält dank Fenster viel Tageslicht und verfügt über eine bodentiefe Dusche. Ein praktischer Abstellraum mit Anschluss für Waschmaschine und Trockner sowie eine zusätzliche kleine Abstellkammer runden das Raumangebot ab.

Das Gebäude ist mit einer Aufzugsanlage ausgestattet, die auf allen Etagen hält
und so ein bequemes Erreichen der Wohnung gewährleistet. Zur Wohnung gehört außerdem ein Außenstellplatz. Nach Kaufvertragsabschluss haben Käufer die Möglichkeit, die Ausstattung individuell
zu bemustern – von Bodenbelägen über Fußleisten bis hin zu Armaturen im
Badezimmer. So lässt sich die Wohnung nach den eigenen Vorstellungen gestalten und zu einem Zuhause mit persönlicher Note machen.

Verfügbare Wohnungen:
WHG 1: 132,82 m², 4-Zimmer, 645.000,00 €
WHG 2: 59,96 m², 3-Zimmer, 315.000,00 €
WHG 3: 59,93 m², 3-Zimmer, 315.000,00 €
WHG 4: 56,96 m², 3-Zimmer, 299.800,00 €
WHG 5: 56,39 m², 3-Zimmer, 294.500,00 €

Ausstattung

Ausstattung
- Fußbodenheizung
- Personenaufzug auf jeder Etage
- Klingelanlage mit Gegensprech-, Kamera- und Türö?nerfunktion
- Moderne Bodenbeläge
- Stilvolles Badezimmer-Konzept inkl. Sanitär-Ausstattung
- 3-Fach Isolierverglasung - Kunststo?fenster - einbruchshemmend einschließlich
Pilzkopfverriegelung
- Weißlack Zimmertüren
- Elektrische Jalousien in Schlafräumen & Wohnräumen
- PV-Anlage nach Berechnung der Wärmepumpenleistung

Natürlich können Sie beim frühzeitigen Kauf auch noch sämtliche Materialien
bemustern bzw. sich aussuchen.
Dieses Wohnprojekt wird in KfW40QNG Bauweise erstellt, sodass pro
Wohneinheit (5 Einheiten) die KFW Förderung mit einem Kreditanteil in Höhe
von 150.000,00 € zu günstigen Zinsen bei der KFW beantragt werden.

Die Fertigstellung des Neubauprojektes ist zu August/September 2026 geplant.
Sollten Sie einen Termin wünschen oder noch weitere Fragen haben haben, stehen wir Ihnen selbstverständlich jederzeit gerne zur Verfügung.

Sonstige Informationen

Lage

Die Eigentumswohnung liegt in Oldenburg-Eversten, einem der begehrtesten Stadtteile der Huntestadt. Die Yorkstraße ist eine ruhige, gepflegte Wohnstraße mit überwiegend ansprechender Bebauung und einem angenehmen Wohnumfeld. Dank der zentralen Lage sind Einkaufsmöglichkeiten, Supermärkte, Bäckereien, Apotheken sowie Ärzte und Banken schnell und bequem erreichbar.

Familien profitieren von der Nähe zu Kindergärten, Grundschulen und weiterführenden Schulen. Auch die Carl-von-Ossietzky-Universität befindet sich in kurzer Entfernung, was die Lage zudem für Studierende und Dozenten attraktiv macht.

Die Anbindung an den öffentlichen Nahverkehr ist hervorragend: Mehrere Buslinien verkehren in unmittelbarer Nähe und bringen Sie in wenigen Minuten in die Innenstadt. Mit dem Auto ist die A28 in Kürze erreichbar und gewährleistet eine sehr gute regionale und überregionale Verkehrsanbindung.

Für Erholung und Freizeit bieten sich das Naherholungsgebiet Eversten Holz, der Schlossgarten oder Spaziergänge entlang der Hunte an. Auch Sportvereine, Fitnessstudios und kulturelle Angebote befinden sich im Umfeld. Damit verbindet die Lage ruhiges Wohnen in angenehmer Nachbarschaft mit optimaler Infrastruktur und kurzen Wegen in die Stadt.

Lage

Die dargestellte Position der Immobilie ist nur eine ungefähre Angabe.

Direktanfrage

* Pflichtangaben
 SSL-verschlüsselt
Darstellung der Immobilien mit WP-ImmoMakler. Immobilien-Daten bereitgestellt von Immowelt.